5/5 - (1 bình chọn)
– Thiết kế tùy theo diện tích mặt bằng của bệnh viện;
– Đáp ứng các tiêu chuẩn kỹ thuật GMP – WHO, GMP-EU, ISO…
– Mô-đun được thiết kế dễ dàng cho việc lắp đặt.
– Sát tiến độ, chuẩn chất lượng
– Bảo hành, bảo trì 24/7
– Thiết kế tùy theo diện tích mặt bằng của bệnh viện;
– Đáp ứng các tiêu chuẩn kỹ thuật GMP – WHO, GMP-EU, ISO…
– Mô-đun được thiết kế dễ dàng cho việc lắp đặt.
– Sát tiến độ, chuẩn chất lượng
– Bảo hành, bảo trì 24/7
Trong việc thiết kế phòng mổ, việc tuân thủ các tiêu chuẩn kỹ thuật là điều vô cùng quan trọng. Cùng Airtech Thế Long tìm hiểu về các nguyên tắc thiết kế và tiêu chuẩn mặt bằng phòng mổ mới nhất hiện nay nhé.
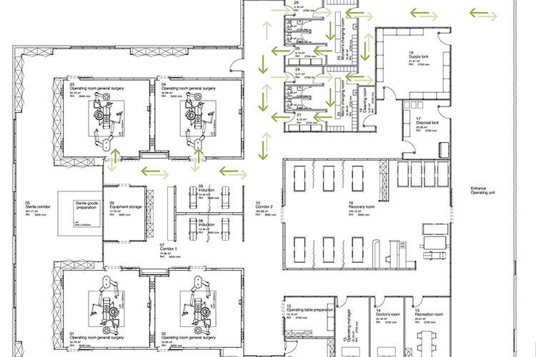
Mặt bằng phòng mổ thường được thiết kế theo nguyên tắc một chiều để kiểm soát nhiễm khuẩn. Tùy vào quy mô bệnh viện, sẽ có 1 hoặc nhiều phòng mổ trong cùng một khu phẫu thuật.
Một khu phẫu thuật cơ bản sẽ bao gồm những phân khu như sau:

Mô hình thiết kế nhiều phòng mổ trong cùng 1 khu vực bệnh viện
Mặt bằng phòng mổ phải được thiết kế theo nguyên tắc cốt lõi là đảm bảo sự vô trùng tuyệt đối, đảm bảo luồng di chuyển hợp lý (để tránh nhiễm chéo) và tuân thủ các tiêu chuẩn Y tế GMP, ISO hoặc TCVN trong phòng sạch. Dưới đây là những nguyên tắc bắt buộc phải tuân thủ trong việc thiết kế phòng mổ nói chung và thiết kế mặt bằng phòng mổ nói riêng.
Khi thiết kế mặt bằng phòng mổ, bắt buộc cần phải tuân thủ nguyên tắc “một chiều” và có phân cấp khu vực rõ ràng như sau:
Khu vực sạch – vô khuẩn tuyệt đối: Đây là khu vực có cấp độ như phòng mổ, phòng hồi sức, phòng vô khuẩn dụng cụ.
Khu sạch: Đây là khu vực hành lang sạch, phòng thay đồ vô khuẩn, phòng rửa tay.
Khu đệm: Đây là khu “chuyển giao” giữa các phòng có cấp độ sạch khác nhau, khu vực này cần sử dụng các loại pass box (hộp chuyển hàng) hoặc buồng thổi khí (air shower)
Khu không sạch: Đây là khu vực hành lang vận chuyển, khu kỹ thuật hoặc kho vật tư.
Khi thiết kế phòng mổ, luồng di chuyển phải được sắp xếp tuần tự để đảm bảo không lây nhiễm chéo như sau:
Đối với nhân viên y tế: Thiết kế phòng thay đồ, rửa tay=> Qua buồng thổi khí => Vào phòng mổ.
Đối với bệnh nhân: từ khu tiểu phẫu => phòng mổ=> phòng hồi sức=> chuyển về khoa điều trị.
Dụng cụ sạch: Từ khu tiệt trùng=> Qua pass box=> Phòng mổ
Chất thải, dụng cụ bẩn: Theo đường riêng ra ngoài, tuyệt đối không đi cùng đường với dụng cụ sạch.

Thiết kế phòng mổ cần đảm bảo nguyên tắc di chuyển luồng “một chiều”
Về bố trí không gian, cần phải bố trí phòng mổ ở khu vực trung tâm, cũng cần được bố trí gần khu vực hồi sức cấp cứu và ICU để cấp cứu nhanh.
Trong phòng mổ cần phải duy trì áp lực dương để ngăn bụi, vi sinh xâm nhập. Lưu lượng khí tươi >=20 lần.
Hệ thống lọc khí, cấp khí qua màng lọc Hepa đảm bảo không khí sạch chuẩn ISO 5 – 7 tùy mức độ phẫu thuật.
Dòng khí một chiều (Laminar flow) cần phải được duy trì nhất là trong các dạng phòng mổ phẫu thuật cấy ghép, tim mạch.
Trong phòng mổ, hệ thống ánh sáng phải đạt từ >=40.000 lux, với ánh sáng chung phải đạt từ >=500 Lux. Ngoài ra, hệ thống điện, khí y tế cần được bố trí hợp lý, ổn định, có hệ thống khí nén, oxy trung tâm.
Hệ thống khử khuẩn như đèn UV, Plasma cũng cần được bố trí hoặc có thể tích hợp vào hệ thống HVAC trung tâm.

Hệ thống ánh sáng trong phòng mổ đảm bảo độ sáng để phục vụ kíp mổ tốt nhất
Khi thiết kế phòng mổ, do đặc thù môi trường vô trùng, cần độ vô trùng cao nên không gian cần được bố trí kín, đồng thời làm từ những vật liệu dễ làm sạch như: Panel ESP…, . Về sàn cũng cần chống trơn, dẫn điện ESD chống tĩnh điện để đảm bảo an toàn cho người vận hành.
Khi thiết kế phòng mổ hoặc thi công mặt bằng phòng mổ cần phải đặc biệt lưu ý những vấn đề như sau:

Diện tích phòng mổ phải đạt tối thiểu 36m2
Để đảm bảo yêu cầu chống nhiễm khuẩn trong khu vực phòng mổ, việc lắp đặt trang bị hệ thống khí sạch là điều rất quan trọng hiện nay tại các bệnh viện. Việc phân bổ các luồng khí sạch theo cấp độ như sau:

Vách phòng mổ phải là những vật liệu cách nhiệt, chống cháy, chống bám bẩn
Tóm lại, thiết kế và thi công phòng mổ là một công việc đòi hỏi tính chuyên môn và kỹ thuật cao. Chính vì vậy, trước khi chọn bất kì đơn vị nào thi công, quý khách cũng nên cân nhắc thật kỹ để tránh những nhà thầu không có năng lực chuyên môn hoặc chưa có nhiều kinh nghiệm trong thi công, thiết kế phòng mổ.
Trong lĩnh vực y tế, phòng mổ là khu vực đặc biệt quan trọng, nơi yêu cầu sự vô khuẩn tuyệt đối, an toàn và tuân thủ nghiêm ngặt các tiêu chuẩn quốc tế. Việc lựa chọn đúng đơn vị thiết kế – thi công không chỉ quyết định chất lượng công trình mà còn ảnh hưởng trực tiếp đến hiệu quả điều trị và uy tín của bệnh viện.
Với kinh nghiệm hơn 15 năm thi công trong lĩnh vực phòng sạch, Airtech tự hào là đơn vị duy nhất tại Việt Nam thi công phòng mổ theo tiêu chuẩn kỹ thuật của tập đoàn Airtech Nhật Bản.
Airtech Thế Long được các đơn vị tin tưởng lựa chọn bởi sở hữu nhiều ưu điểm vượt trội như:
Kinh nghiệm chuyên sâu: Chúng tôi sở hữu đội ngũ kỹ sư được đào tạo bài bản từ các trường kỹ thuật có uy tín, có nhiều năm kinh nghiệm triển khai các dự án bệnh viện lớn.
Giải pháp trọn gói, tối ưu chi phí, tiến độ: Airtech Thế Long cung cấp dịch vụ trọn gói từ tư vấn, khảo sát đến thiết kế, thi công, cung ứng các thiết bị đến lúc nghiệm thu bàn giao. Quý khách sẽ không cần làm việc với những nhà thầu nhỏ lẻ, giảm thiểu rủi ro, tiết kiệm đáng kể thời gian, chi phí.
Tuân thủ các tiêu chuẩn kỹ thuật VN, quốc tế: Chúng tôi cam kết thi công phòng mổ theo các tiêu chuẩn GMP – WHO, GMP-EU, ISO 14644, TCVN…
Dịch vụ bảo hành, bảo trì chuyên nghiệp: Airtech Thế Long cam kết bảo hành, bảo trì dài hạn, có đội ngũ kỹ thuật trực tiếp hỗ trợ 24/7 nhằm đảm bảo phòng mổ vận hành ổn định, duy trì trạng thái vô khuẩn.
Nếu quý khách có nhu cầu tư vấn, thiết kế thi công mặt bằng phòng mổ, quý khách vui lòng liên hệ qua
CÔNG TY CỔ PHẦN AIRTECH THẾ LONG
Hotline: 0915.283.960
Email: info@thelong.com.vn
Bản vẽ mặt bằng phòng mổ



CÔNG TY CỔ PHẦN AIRTECH THẾ LONG
Trụ sở: Số 144, phố Việt Hưng, Tổ 3, P.Việt Hưng, Tp.Hà Nội
Nhà máy 1: Lô đất IN9.4, đường số 1, khu công nghiệp Cẩm Điền – Lương Điền, xã Cẩm Điền, thành phố Hải Phòng
Nhà máy 2: E5/34A, Đường Liên Ấp 5.6, xã Vĩnh Lộc, thành phố Hồ Chí Minh